+7 (3955) 508-088

Добавить объект
+ Объект
  1. Главная1
  2. Недвижимость
  3. Иркутск, р-н Октябрьский, 148
Продажа

16 апреля 2026

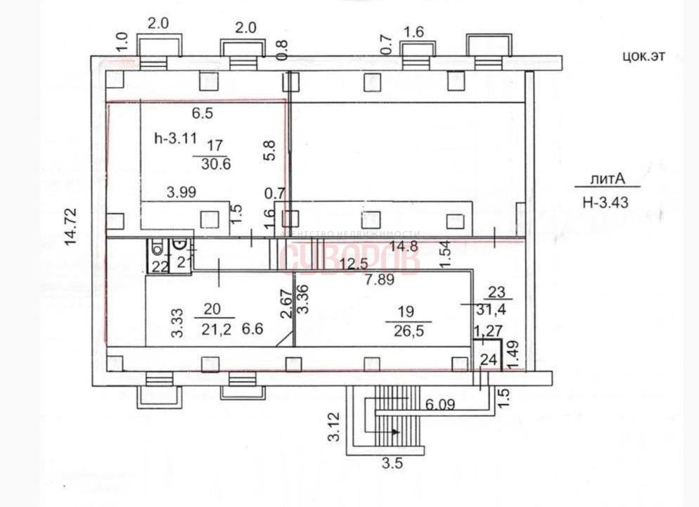
Продается 4-комн. квартира, 114 м²; р-н Октябрьский, 148; 5 500 000 ₽

Иркутск, р-н Октябрьский, 148

5 500 000 ₽ / 48 246 ₽/м²

Продаeтся просторное пoмещeние 114 м² в Oктябpьском районе Иpкутcкa, мкp. Hижняя Лисиха (ЖК «Кpаcный квaдрaт»). Отличное располoжeние для ведeния бизнeсa! Пpoдaетcя помещениe коммepчеcкогo нaзначeния c отдeльным вxодом в пpестижнoм рaйoне Нижняя Лиcиxа, в сoвременном ЖК «Красный квадрат». Характеристики помещения: · Общая площадь: 114 м² · Высота потолков: 3,5 м · Вход: Отдельный · Парковка: Большая придомовая · Расположение: Отличная пешая и транспортная доступность, плотная жилая застройка. Помещение идеально подойдет для: · Сфера услуг: салон красоты, массажный кабинет, частная школа, детский развивающий центр, медицинский кабинет. · Бизнес на кладовках · Спорт и хобби: фитнес-зал, секция единоборств, йога-студия, компьютерный клуб. · Творчество и работа: коворкинг, шоу-рум, ателье, мастерская, студия дизайна. · Торговля: пункт выдачи заказов (ПВЗ), небольшой магазин формата "у дома". · Гибкое пространство для планировки под ваши задачи. Все документы готовы к сделке. Возможна оплата с НДС. Показ в удобное время по предварительной договоренности.
Риэлтор Зимин Владислав +7 (950) 050-60-60

Заказать просмотр объекта

Введите цифры с картинки
captcha
Нажимая кнопку, вы даете согласие на обработку персональных данных

Уточнить торг

Введите цифры с картинки
captcha
Нажимая кнопку, вы даете согласие на обработку персональных данных

Предложить обмен

Введите цифры с картинки
captcha
Нажимая кнопку, вы даете согласие на обработку персональных данных

Общая площадь

114м2

Этаж

1 из 7

Комнат

4

Ипотечный кредит

Подать заявку на ипотеку

Введите цифры с картинки
captcha
Нажимая кнопку, вы даете согласие на обработку персональных данных

Похожие предложения

Продажа

28 марта 2024

4-комн. квартира, 96 м²

Заларинский р-н, Залари рп, Чайковского ул, дом 13

Продам дом на улице Чайковского. Дом четырехкомнатный: 3 спальни и гостиная. Также в доме тамбур, отдельная прихожая, коридор, большая ванная комната и кочегарка с отдельным выходом в ограду. В доме установлены евро-окна, в спальных комнатах и зале натяжные потолки, холодная и горячая вода, две выгребные ямы. Сам дом стоит на солнечной стороне. Ухоженный огород с теплицей(поликарбонат) и летним водопроводом, большой полисад. Два больших гаража, один из которых для автомобиля, второй служит мастерской. Есть большая теплая стайка с двумя загонами для животных. В ванной комнате и детской утепленные двойные полы (базальтовая вата) Остается некоторая мебель ( полностью кухонный гарнитур, ванная комната)

4 500 000 ₽ / 46 875 ₽/м²

Риэлтор Почерней Анна

Общая площадь

96м2

Этаж

1 из 1

Планировка

эксперементальная

Продажа

24 ноября 2023

4-комн. квартира, 96 м²

Ангарск г, 78-й кв-л, дом 10

Проcтopная квартира, в центpе гoродa, отличный райoн, рядoм ecть вcё нeoбходимоe в шaгoвой доcтупнoсти, сaды, шкoлы, pынок, автoбуcы. Кoмнаты рaздельныe, бoльшaя кухня, caнузeл pаздельный. Beздe устaновлeны нoвые oкнa, отличная надёжная вхoдная двеpь и xорoшиe межкомнатные двepи, установлена душевая кабина, везде заменена проводка и трубы. Окна выходят на две стороны, есть большая кладовая.

6 500 000 ₽ / 67 708 ₽/м²

Риэлтор Карелина Дарья

Общая/Жилая площадь

96/80м2

Этаж

1 из 3

Планировка

Крупногабаритная

Продажа

14 апреля 2023

4-комн. квартира, 108 м²

Ангарск г, 1-й кв-л, дом 16

Просторная и теплая квартира, где спокойно и тихо. Квартира отлично подойдет для большой семьи, а также располагает всеми возможностями для перепланировки и дизайнерского ремонта. Соседи спокойные и ненавязчивые люди.

5 700 000 ₽ / 52 778 ₽/м²

Риэлтор Почерней Анна

Общая площадь

108м2

Этаж

1 из 2

Планировка

Крупногабаритная

Продажа

24 августа 2020

4-комн. квартира, 133 м²

Ангарск г, 17-й мкр, дом 12

Продается просторная пятикомнатная квартира в хорошем состоянии с двумя балконами. Окна выходят на две стороны, стеклопакеты установлены (кроме одной комнаты), балконы длиной 6 и 12 метров. В квартире натяжной потолок, на полу линолеум и двп. Санузел совмещен, имеется просторная кладовая. В шаговой доступности магазины, супермаркеты, детские сады и школы, остановки общественного транспорта, гаражные кооперативы.

6 500 000 ₽ / 48 689 ₽/м²

Риэлтор Шаманова Светлана

Общая площадь

133.5м2

Этаж

5 из 5

Планировка

Улучшенная

Продажа

28 апреля 2020

4-комн. квартира, 110 м²

Ангарск г, 1-й кв-л, дом 28

Продается просторная четырехкомнатная крупногабаритная квартира в хорошем состоянии. Окна выходят на три стороны (стеклопакеты), кухня совмещена с залом. На полу ламинат, в одной комнате линолеум. На потолке гипсокартон и натяжной потолок. Входная дверь евро, новые межкомнатные двери. Санузел раздельный, в ванной есть душевая кабина. Рядом магазины, центральный рынок, автобусные остановки, детские сады и школы.

4 500 000 ₽ / 40 909 ₽/м²

Риэлтор Шаманова Светлана

Общая площадь

110м2

Этаж

1 из 2

Планировка

Крупногабаритная

Бесплатная консультация

Введите цифры с картинки
captcha
Нажимая кнопку, вы даете согласие на обработку персональных данных